中古戸建 八尾市西山本町3丁目 『河内山本』駅
Outline物件の概要
| 土地面積 | 125.84㎡ |
| 坪数 | 38.06坪 |
| 建築時期 | 2019年2月 |
| 引渡条件 | 相談 |
| 建ぺい率/容積率 | 60%/188% |
| 取引態様 | 仲介 |
- ファミリー層に大人気のエリア♪
- 小学校まで徒歩5分♪
- 大型商業施設が近く生活に便利♪
特徴ピックアップ
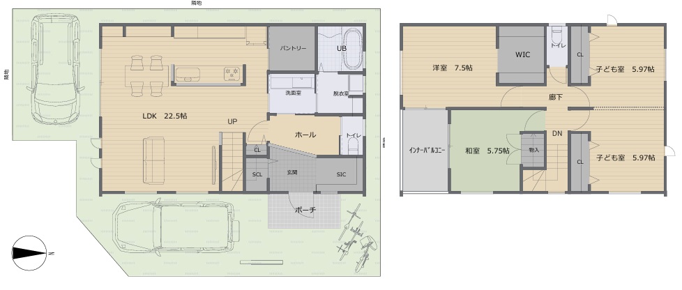
3LDK 所有権 中古戸建 WIC・SIC・パントリー付き
Surroundings / Map周辺環境・地図
周辺環境

河内山本駅 徒歩12分 
八尾市緑ヶ丘郵便局 徒歩9分 
関西スーパー旭ヶ丘店 徒歩5分 
西山本小学校 徒歩4分 
東中学校 徒歩24分 
たんぽぽ保育園 徒歩4分
地図
Property Summary物件詳細
| 交通 | 近鉄大阪線 / 河内山本駅 徒歩12分 |
| その他交通 | |
| 所在地 | 大阪府八尾市西山本町3丁目 |
| 物件種目 | 中古戸建 |
| 価格 | 4,980万円 |
| 延床 | 121.72㎡(36.82坪) |
| 借地期間・地代(月額) | |
| 権利金 | |
| 敷金/保証金 | |
| 維持費等 | |
| その他一時金 | |
| 設備 | 公営水道・都市ガス・本下水 |
| 特記事項 | |
| 備考 | 【その他事項】準防火 |
| 土地面積 | 公簿 125.84㎡ |
| 坪数 | 38.06坪 |
| 最適用途 | 住宅用地 |
| 私道負担面積 | |
| 土地権利 | 所有権 |
| 都市計画 | 市街化区域 |
| 用途地域 | 第一種住居地域 |
| 地勢 | 平坦 |
| 建ぺい率 | 60% |
| 容積率 | 188% |
| 接道状況 | 東側:幅員4.7m |
| 地目 | 宅地 |
| 国土法届出 | |
| セットバック | |
| 現況 | 空家 |
| 引渡し(可能時期/方法) | 相談 |
| 条件等 | |
| 物件番号 | 018 |
| 情報公開日 | 2026/04/30 |
| 次回更新予定日 | 2026/05/29 |







































